Works - Các dự án kiến trúc của VuVi Va

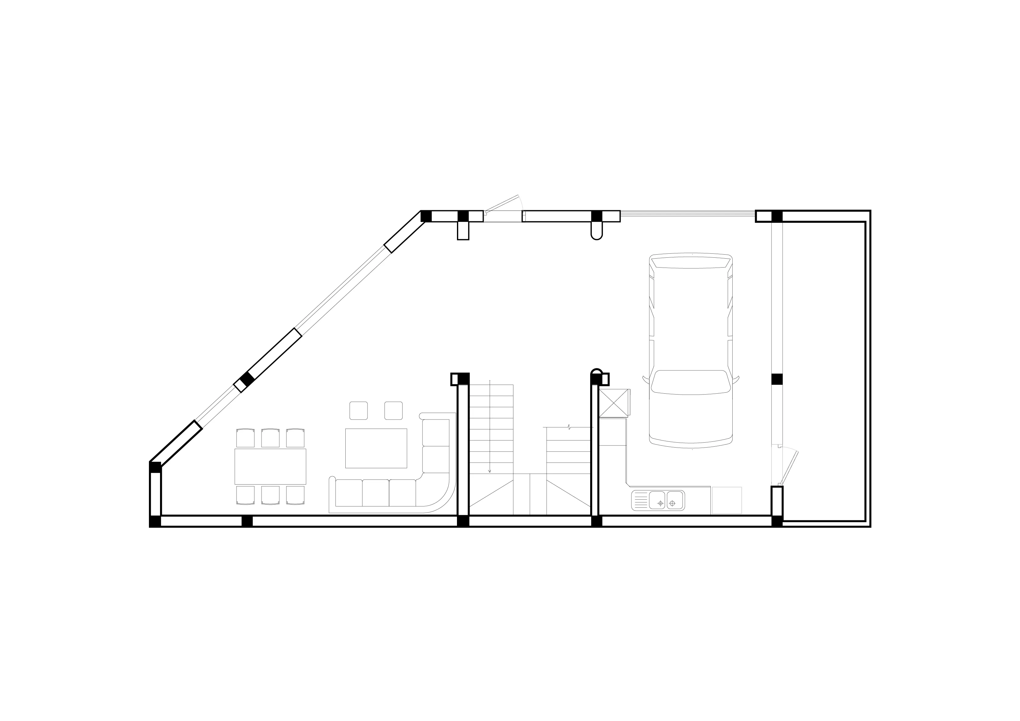
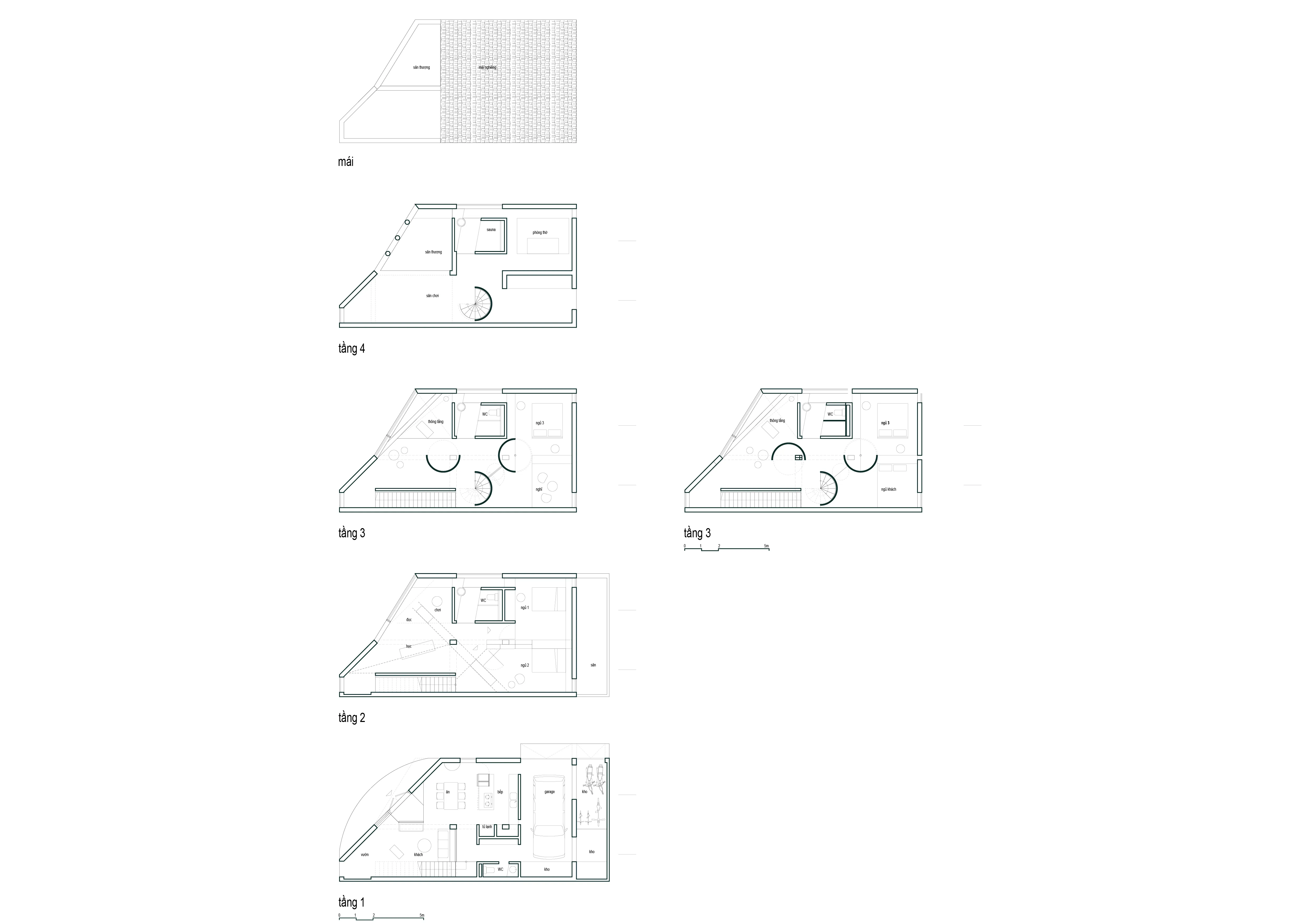
Dự án kiến trúc VQ HOUSE - Hình ảnh tổng quan
Year: 2022
Location: Ha Dong, Ha Noi
Status: on-going
Tags: architecture, house, renovation